鹽富產品類別

聯(lián)系人:15261998288(王經(jīng)理)
電話:0515-68786555
售后服務:0515-68786362
郵箱:jsyfhb@163.com

粉煤灰分選系列

您當前位置:首頁 > 產品展示

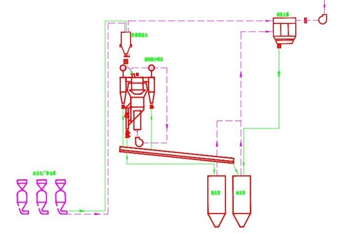
粉煤灰直接分選型工藝流程

 

工藝說明

工藝流程

 

 

網(wǎng)站首頁      產品中心     工程案例       新聞中心     技術交流     走進鹽富     聯(lián)系我們